ローコスト ガレージハウス

コメントする
Blog
テスラ ガレージハウス

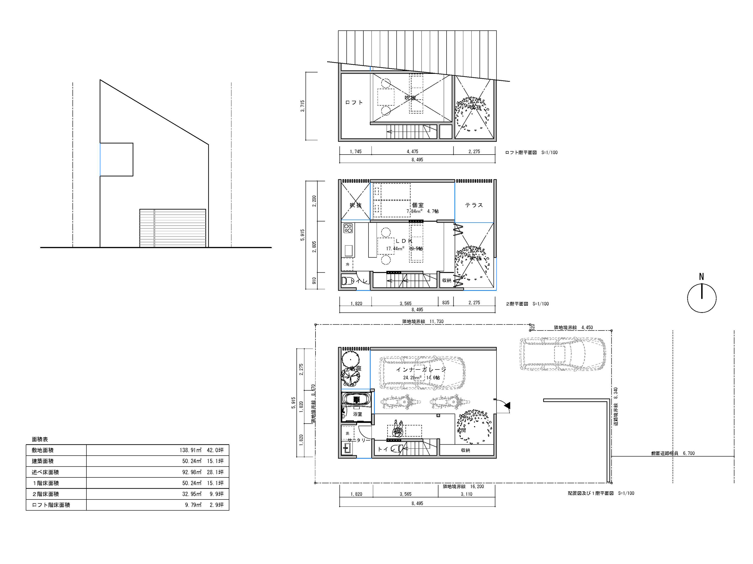
 最近よく、ガレージハウスの提案依頼を受けるようになった。住宅の規模は様々で、高級車を所有するオーナーさんの計画や、国産のレトロな車好きなど様々である。今回はローコスト住宅であるが、唯一の趣味が車で、どうしてもガレージハウスに住みたいオーナーさんの為の計画の依頼であった、しかし金額的には一般的な建売りや工務店が建てるクラスの金額の予算しかない。限られた条件ではあるが、どうしても夢のマイホームに住みたいと願う要望には、こちらとしても何とか協力をしたい気持ちになる。


金額のみを選定対象とした依頼には、いつもお断りをさせて頂いているが、このような理想の住まいを求めて、クライアント自らが考えて、家づくりをしていると姿は建築家として嬉しく思う。昨今の住宅は「建てる」と言うイメージではなく、「買う」イメージが強くなってきている、時代の流れとしては、そうなる事が当然でその中での建築家としての、提案はして行きたいと思ってはいるが、施主・施工者・建築家で「建てる」住まいも、まだまだ可能性はあると思っている。


ローコスト ガレージハウス




家づくりを体験する事によって、暮らしへの考え方が成長するだろうし、建物の愛着は増える。体験や感情・ストーリーなど、今後の建築に必要とされるキーワードだと考えている。


そのような思想は抜きにしても、実際のプランニングを考える際に、「建てる」事は大きく家づくりに影響を与える。例えば、ガレージハウスで言うと、愛車によってもプランニングは変わる。最近は、テスラなどの電気自動車を所有しているクライアントも多い、その事から居室と一体にした住空間を設計しても、排ガスや騒音の影響を気にすることなく、オブジェとして空間に配置する事が可能である。


「建てる」事は、とても大変な事ではあるが、そのような些細な事柄から、一つ一つ積み上げて住宅を構築する事で、その人らしい住宅を設計できれば豊かな住宅になるのではないだろうか。


テスラ 家

最近なぜか、テスラの動画をユーチューブで見る事が多い、イーロン・マスクの魅力に引き寄せられて。


コメントを残す